Arquitectura
Anteproyecto
Proyecto Ejecutivo
Construccion
Obra Civil
Remodelaciones
Mantenimiento
BIM
BIM ARQ
BIM MEP
BIM EST
Portafolio
Contacto
Anterior
Siguiente
PROYECTO
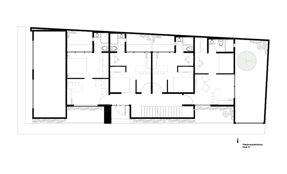
Pabellón Multifamiliar “Colima”
Anteproyecto
·
Diseño Arquitectónico
Proyecto de uso mixto que combina el uso habitacional y comercial para el máximo aprovechamiento.
2016
Año