Anteproyecto Proyecto Ejecutivo

Anteproyecto

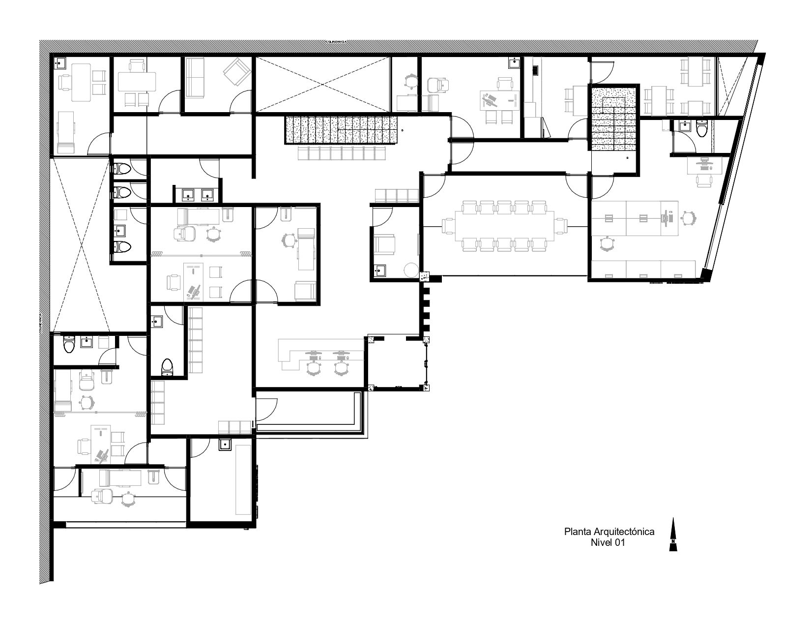
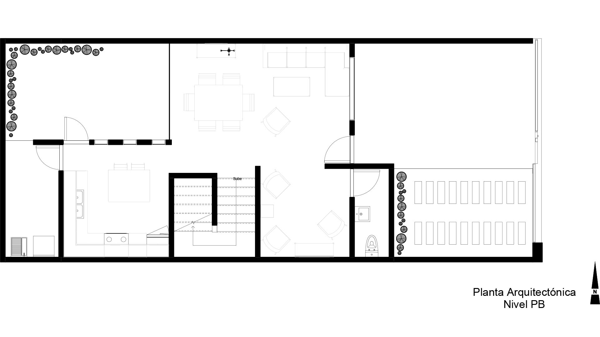
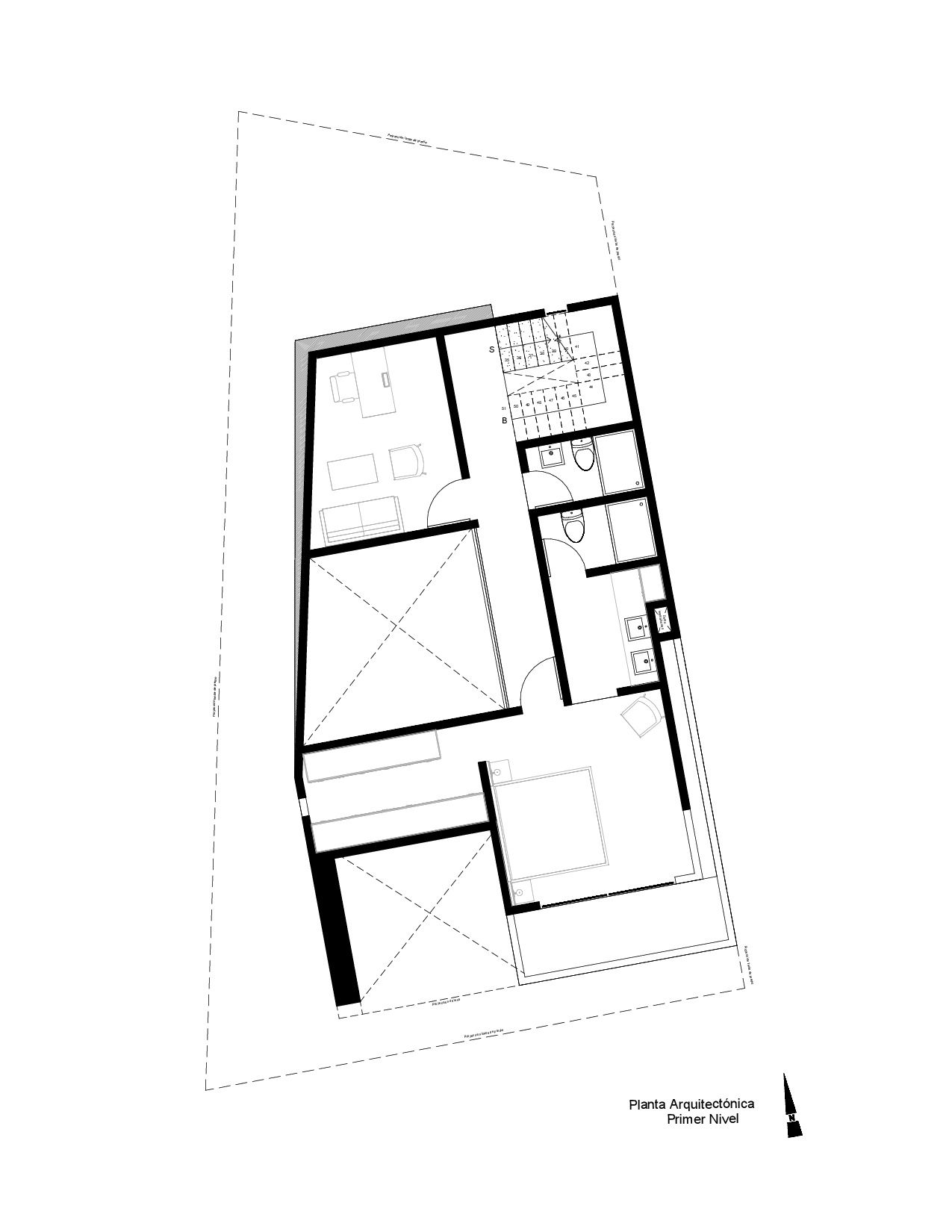
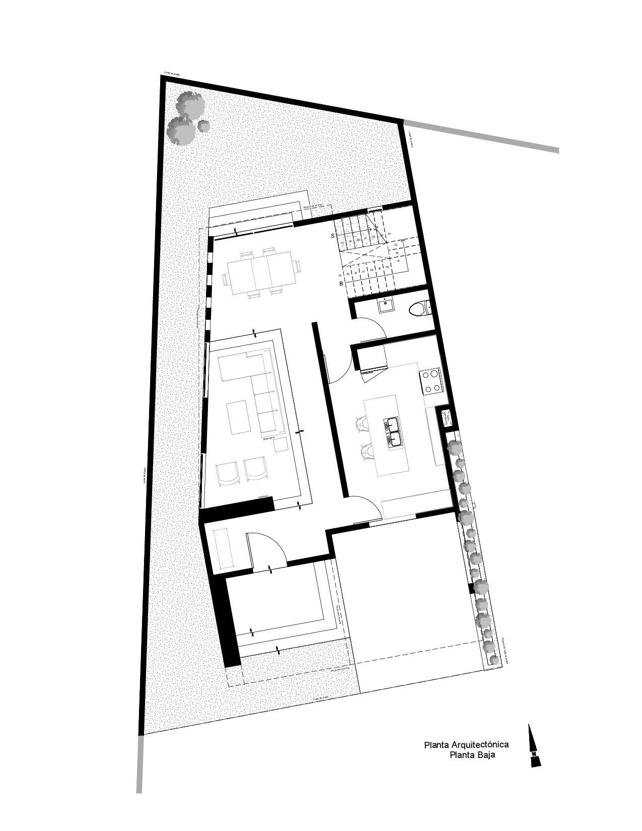
El anteproyecto es la etapa inicial del diseño arquitectónico donde se definen las ideas principales del proyecto. Aquí se exploran distintas soluciones espaciales, formales y funcionales para establecer una dirección clara antes de desarrollar el proyecto a detalle.

¿Qué es?

Es la etapa inicial donde se define el concepto arquitectónico y se exploran las primeras ideas espaciales, formales y funcionales del proyecto.

¿Para qué sirve?

Permite analizar y comparar distintas propuestas antes de avanzar al desarrollo técnico.

¿Por qué es importante?

Porque establece una base clara del proyecto y reduce la necesidad de ajustes costosos en etapas posteriores.

¿Qué incluye?

Bocetos, diagramas, esquemas de distribución, estudios volumétricos y primeras visualizaciones.

¿Qué se define en esta etapa?

La organización espacial, el lenguaje arquitectónico y la relación con el contexto.

¿Cómo ayuda al cliente?

Facilita comprender el proyecto desde el inicio y tomar decisiones informadas.

¿Qué sigue después?

El desarrollo del proyecto ejecutivo, donde la propuesta se define a nivel técnico.